Hi Everyone
Happy 2018
❤
So excited to share with you
our new remodel project for 2018.
This is the before pic ... we loved the
beautiful white washed high pitched ceilings
right off the kitchen in this morning room.
BUT the angled fireplace
was awkward, it did not fit the room
and made the space feel very narrow
Here is the space today!
We took out the fireplace, the walls
and made it a bright outdoor living space off the kitchen.
In addition, we added shiplap and gorgeous La Cantina folding doors that
bring the outside in.
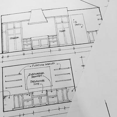
The drawing for the kitchen shows all the details
it is now a very large space and will have
2 islands as well as
a subzero refrigerator and freezer
farmhouse sink
carrera marble counter tops and tile
a gorgeous Thermador range with blue knobs.
via pinterest
This is the inspiration pic for the new kitchen.
LOVELOVELOVE and can't wait to share with you
the transformation of the rest of the house too.
Grateful to be sharing this new remodel with all of you
Be sure and follow along on Instagram for daily updates and site visits !!!!!
romantic saying for today
"I see the future and it is YOU"
unknown
❤
Pam
beautiful white washed high pitched ceilings
right off the kitchen in this morning room.
BUT the angled fireplace
was awkward, it did not fit the room
and made the space feel very narrow
Here is the space today!
We took out the fireplace, the walls
and made it a bright outdoor living space off the kitchen.
In addition, we added shiplap and gorgeous La Cantina folding doors that
bring the outside in.
The drawing for the kitchen shows all the details
it is now a very large space and will have
2 islands as well as
a subzero refrigerator and freezer
farmhouse sink
carrera marble counter tops and tile
a gorgeous Thermador range with blue knobs.

This is the inspiration pic for the new kitchen.
LOVELOVELOVE and can't wait to share with you
the transformation of the rest of the house too.
Grateful to be sharing this new remodel with all of you
Be sure and follow along on Instagram for daily updates and site visits !!!!!
romantic saying for today
"I see the future and it is YOU"
unknown
❤
Pam



































.jpg)











